當前位置:網站首頁
> 產品展示
CLDR/CWDR系列電加熱熱水機組
該產品具有無噪聲、無污染、安裝使用方便等優點。可以利用電網低谷進行熱電交換實現能量儲備,為電力部門提供了一種可調峰的設備,尤其適用于對環保和消防要求高的地區及繁華地區,該機組采用了以下關鍵技術:
※ 電熱管排列和接線結構:實現機組電加熱管合理排列,方便更換和維修。
※PLC控制技術:實現機組全自動無人值守,電加熱管分級啟停,保證電鍋爐安全運行,具有超溫、過載、短路、漏電、缺水、缺相等安全保護措施。
全中文菜單,簡捷人機界面,鍋爐運行參數動態顯示。※全掛鉤式面板設計:外觀精美,安裝、拆卸、維修方便。
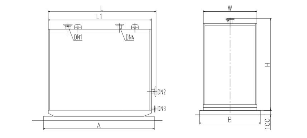
- 設計圖展示
- 相關參數表


上一篇:LDR/WDR系列電蒸汽鍋爐
下一篇:WZR系列燃油燃氣真空熱水機組